Giải pháp chống tắc toàn diện cho căn hộ và bếp ăn nhà hàng, khách sạn
Bể tách mỡ công nghiệp, giải pháp bảo vệ công trình.
Dầu mỡ (lipit) là chất nhẹ hơn nước, khó phân hủy và dễ dính bám đặc biệt khi nhiệt độ thấp (về mùa đông) sẽ làm tắc nghẽ hệ thống thoát nước công trình. Nước thải trong các khu bếp ăn công nghiệp, bếp ăn tập thể (bệnh viện, công ty, trường học…), bếp ăn nhà hàng, khách sạn… thường chứa nhiều dầu ăn, mỡ, các loại rác thải rắn.

Nếu lượng mỡ thải này không tách và được xử lý trước khi thải vào hệ thống thoát, sẽ gây tắc hệ thống, làm tốn nhiều chi phí thông, hút hoặc hư hỏng đường ống đồng thời thải ra môi trường sẽ gây ô nhiễm môi trường.
Bể tách mỡ thông minh - Giải pháp tách mỡ hiệu quả, bền vững, thân thiện môi trường
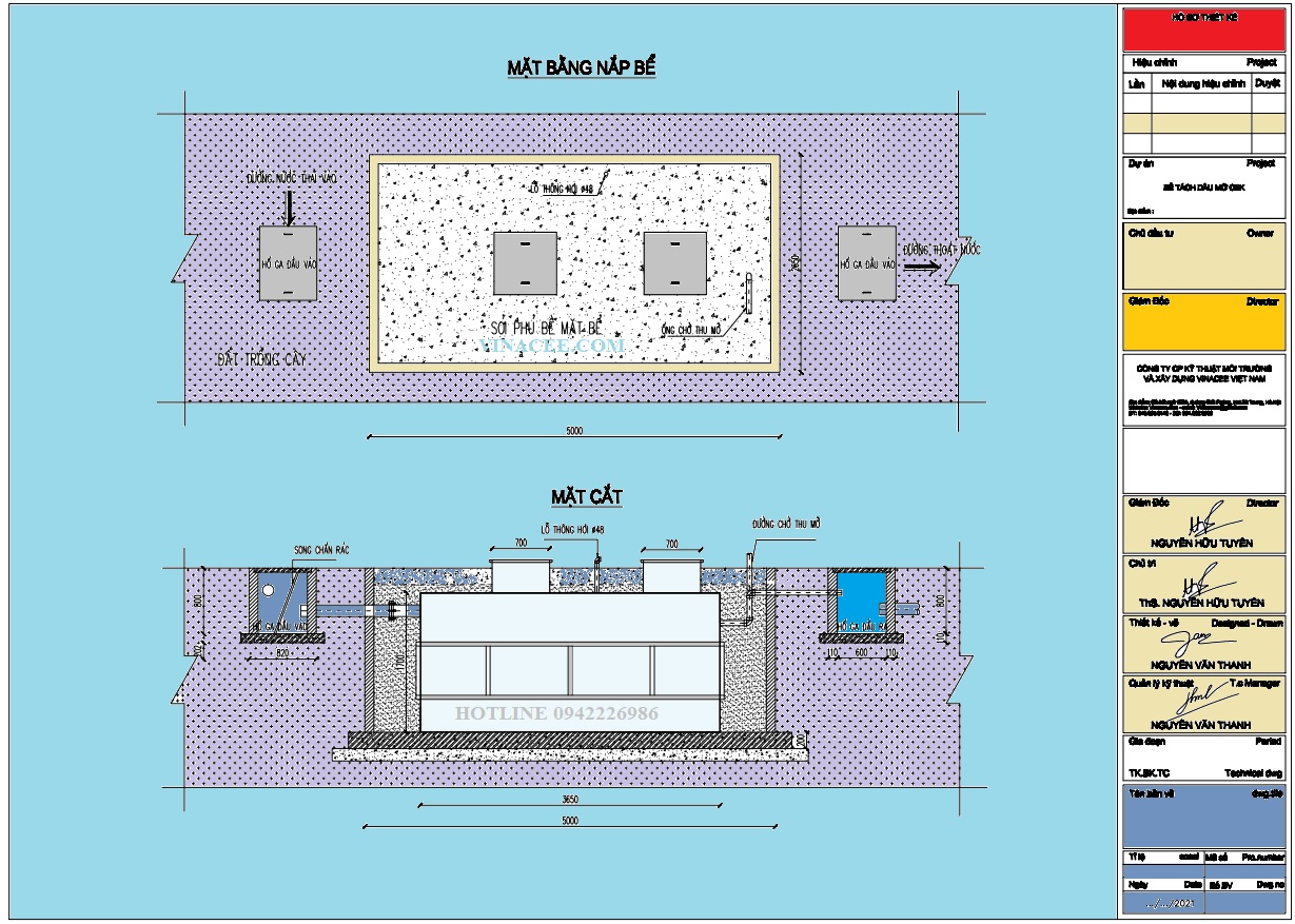
Nguyên lý hoạt động của thiết bị tách mỡ dựa trên nguyên lý dòng xoáy kết hợp gia nhiệt. Nước và mỡ sau khi đi vào ống tạo dòng chảy hướng lên, mỡ được di chuyển theo chu vi quỹ đạo dòng chảy sau đó nổi lên phía trên.

Phần thu dầu mỡ được cấu tạo hình chóp nón để tập trung mỡ lên cao. Ở đây mở được gia nhiệt chống đông cứng bảo đảm luôn ở trạng thái lỏng.

Nguyên lý tách dầu mỡ dựa trên nguyên tắc tuyển trọng lực, dầu mỡ nhẹ hơn nổi lên trên dẫn đến ngăn chứa mỡ, bùn nặng hơn chìm xuống và dẫn đến bẫy bùn.
Bể tách mỡ thiết kế tiêu chuẩn - Giải pháp tối ưu cho nhà hàng và bếp công nghiệp
Thiết kế bể tách mỡ chuẩn theo nhà hàng (Xem mẫu sản phẩm cho các dự án)

Để thiết kế bể tách mỡ theo đúng tiêu chuẩn trong nhiều dự án phức tạo, đòi hỏi kỹ thuật cao thì chúng tôi cần phải khảo sát về địa hình lẫn kích thước không gian lắp đặt bể tách mỡ.

Chính vì vậy mà các đơn hàng bể tách mỡ thường được làm theo yêu cầu của khách hàng sao cho đáp ứng được nhu cầu sử dụng của chủ nhà hàng lẫn nhà thầu xây dựng. XEM KINH NGHIỆM LỰA CHỌN BỂ TÁCH MỠ INOX CAO CẤP LIỆ HỆ TƯ VẤN MIỄN PHÍ 0982309689 (MSS GẤM).

==================================================================
KS Trần Hồng Gấm (0982309689/Zalo KS Nguyễn Văn Thanh/0837.145.888
Công ty CP Kỹ thuật Môi trường và Xây dựng VINACEE Việt Nam
Địa chỉ: Đội 1 Tả Thanh Oai, huyện Thanh Trì, TP Hà Nội
VPGD: Tầng 2, Tòa nhà Số 25A, Tân Mai, Hoàng Mai, Hà Nội
Liên hệ: ĐT 02432013589, E- Mail: vinaceeco@gmail.com

Viết bình luận
Bạn đã gửi bình luận thành công. Xin cảm ơn!