Thiết kế bể tách mỡ tự động thường có mấy ngăn?
Bể tách mỡ hay còn gọi là thiết bị tách dầu mỡ là một trong những thiết bị giúp loại bỏ dầu mỡ, chất thải rắn có lẫn trong nước thải ra khỏi dòng nước trước khi xả thải vào hệ thống thoát nước, hạn chế gây tắc nghẽn đường ống thoát nước cũng như góp phần bảo vệ môi trường và các công trình xử lý nước thải phía sau đó, nâng cao hiệu quả quá trình xử lý nước thải cũng như quá trình tự làm sạch của dòng thải.
Nguyên lý hoạt động của bể tách dựa trên sự khác nhau về trọng lượng riêng giữa nước, mỡ và chất thải rắn; khi đó, dầu mỡ và các chất béo có trọng lượng nhẹ hơn sẽ được tuyển nổi lên bề mặt theo nguyên lý đảo chiều dòng nước đột ngột, đồng thời bể cũng có ngăn chức năng để loại bỏ các chất cặn bã, chất rắn bị cuốn trôi theo dòng nước giúp cho việc thoát nước thải trở nên dễ dàng hơn.

Xét về tính chất hoạt động bể tách mỡ thường có 2 dạng chính đó là dạng hoạt động thủ công và dạng bể tách mỡ tự động.
Đối với dạng thủ công thường áp dụng cho các cơ sở sản xuất kinh doanh dịch vụ phát sinh dầu mỡ có quy mô nhỏ như các quán ăn, các cửa hàng fast food hoặc tại hầu hết các hộ gia đình. Đặc điểm của dòng sản phẩm thủ công là không sử dụng điện, hóa chất, vận hành đơn giản, dễ dàng sử dụng. Tuy vậy với các cơ sở nhà máy có công suất lớn, lưu lượng nước thải chứa dầu mỡ cao (> 10 m3/ngđ) lượng dầu mỡ thải và tạp chất lẫn phát sinh từ 20 đến 200 kg/ngày thì việc sử dụng hệ thống tách mỡ thủ công sẽ không mang lại hiệu quả cao trong quản lý vận hành và sử dụng; Khi đó cần có các thiết bị tách mỡ tự động với tình năng thu và loại bỏ mỡ tự động theo hệ thống điều khiển mới đảm bảo mang lại hiệu năng cao trong vận hành như: không cần theo dõi và thu mỡ trực tiếp từ công nhân, có cảnh bảo về mức dầu mỡ thu được.

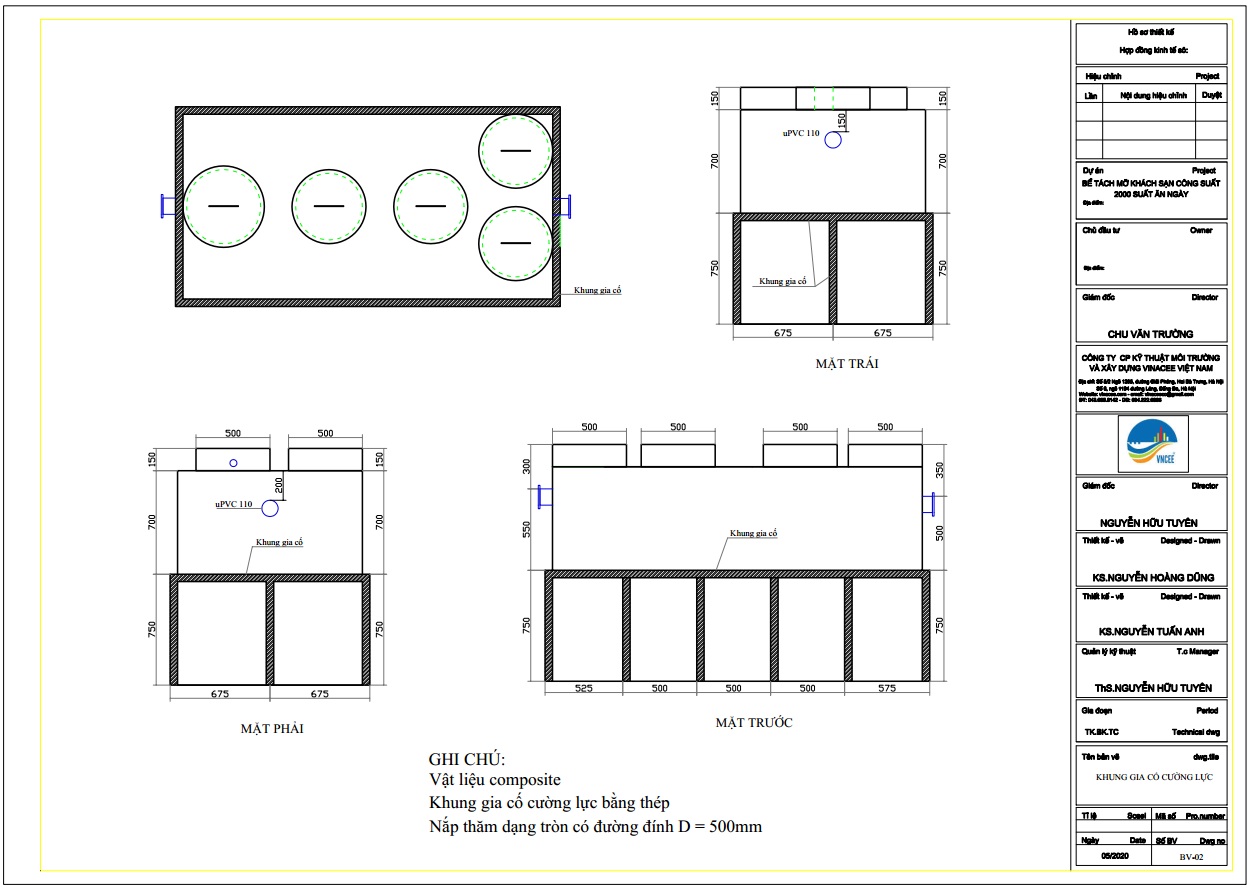
Vậy, bể tách mỡ tự động được thiết kế và cấu tạo như thế nào?
Bể tách mỡ tự động được thiết kế và chế tạo đảm bảo cho quá trình tách mỡ và thu mỡ diễn ra một các tự động bằng các thiết bị bơm thu mỡ, bơm đẩy mỡ và được điều khiển bởi hệ thống tủ điền khiển thông minh T2K.
Vậy bể tách mỡ tự động thường có bao nhiêu ngăn?
Bể tự động được thiết kế theo nguyên lý chung của bể tách mỡ thông thường; tuy nhiên, bể tách mỡ tự động sẽ được tích hợp sẵn thêm 2 ngăn modun với các chức năng như thu mỡ và chứa dầu mỡ.
Vậy có thể hiểu: Bể tách mỡ tự động thường có ít nhất 5 ngăn (tham khảo mẫu thiết kế và sản phẩn do VINACEE Việt Nam thiết kế và chế tạo).

- Ngăn tách cặn bã và chất rắn trong nước thải
- Ngăn tách dầu mỡ chính (cần chú ý tính toán và thiết kế ngăn này)
- Ngăn tách dầu mỡ phụ + lọc mỡ tinh (VINACEE TECH)
- Ngăn thu mỡ
- Ngăn chứa mỡ (mỡ sau khi tách được chứa tại ngăn này, ngăn có thước đo mỡ báo hiệu khi cần bơm mỡ đi xử lý hoặc tái sử dụng cho Composting)
Tại Việt Nam, VINACEE chúng tôi tự hào là một trong những đơn vị tiên phong và dẫn đầu trong tư vấn, chế tạo, cung cấp thiết bị tách mỡ với mong muốn mang đến cho khách hàng, đối tác những sản phẩm có chất lượng tốt nhất, tính năng và hiệu quả cao nhất. Các thiết kế chế tạo của VINACEE được thực hiện tính toán theo TCVN và các nghiên cứu thực nghiệm của VINACEE từ đó mang lại hiệu quả tách dầu mỡ cho các sản phẩm luôn lớn hơn 92.5%.
Với kinh nghiệm nhiều năm trong lĩnh vực kỹ thuật môi trường VINACEE và sản phẩm của Công ty đã phục vụ cho hàng ngàn khách hàng trong và ngoài nước vừa mang lại giá trị cho đối tác, vừa góp phần bảo vệ môi trường với các tính năng hữu ích, thân thiện môi trường do các sản phẩm của Công ty mang lại.
Với phương châm, mang lại những giá trị tốt nhất cho khách hàng, sản phẩm của VINACEE không ngừng được hoàn thiện và phát triển hơn để đáp ứng nhu cầu ngày càng cao của khách hàng và điều đó đã chứng tỏ vị thể của VINACEE ngày nay.
Chi tiết thông tin liên hệ (tư vấn miễn phí)
Phụ trách công nghệ: KS Nguyễn Tuấn Anh (ĐT: 0963830411)
Công ty CP Kỹ thuật Môi trường và Xây dựng VINACEE Việt Nam
Số 2/1295: Giải Phóng, Hoàng Liệt, Hoàng Mai, Hà Nội
Điện thoại hotline: 0942226986 /email: vinaceeco@gmail.com



injedia
unwincith