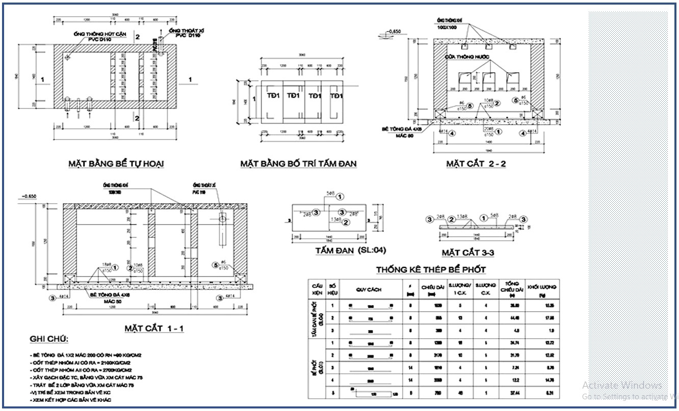
Giới thiệu chi tết bản vẽ thiết kế bể tự hoại và bể tự hoại cải tiến chế tạo sẵn Bastaf
Xử lý nước thải tại chỗ bằng bể tự hoại là một trong những giải pháp truyền thống được áp dụng hàng trăm năm nay nhằm đảm bảo giảm thiểu ô nhiễm môi trường tại, bảo vệ nguồn nước tại chỗ. Bài viết này ThS Nguyễn Hữu Tuyên xin được chi sẻ chi tiết thêm một số thông tin chi tết về bể tự hoại, thiết kế bể tự hoại kích thước lớn để bạn đọc cùng theo dõi nhé. Nếu bạn thấy hay và hữu ích, vui lòng để lại cho chúng tôi 1 comment, hoặc bạn có thể đăng ký nhận trọn bộ thiết kế tại đây
Bể tự hoại là gì? Các loại bể tự hoại thông dụng nhất hiện nay
Bể tự hoại - Tên Quốc tế là Septic hay còn gọi với các cái tên khác như hầm cầu, bồn tự hoại, hầm tự hoại, bể phốt, hố xí tự hoại… Bể tự hoại là một phần chính của hệ thống xử lý nước thải tại chỗ với chi phí thấp, không gây ô nhiễm môi trường qua 2 chức năng chính là lắng nước thải và lên men cặn lắng (chủ yếu sảy ra quá trình lên men kỵ khí..

Nói cách dễ hiểu hơn thì bể tự hoại là nơi chứa tất cả các loại nước thải sinh hoạt hằng ngày của con người từ bồn cầu, các lỗ thoát sàn, chậu rửa bát, lavabo… đi qua đường ống dẫn vào bể. Dưới tác động của các vi khuẩn kỵ khí thì cặn, chất hữu cơ, chất ô nhiễm trong bể sẽ được phân hủy thành các chất khí hoặc chất khoáng hòa tan và bùn vi sinh. Nước sau xử lý qua bể tự hoại sẽ được xả ra môi trường đất bên ngoài.
Các loại bể tự hoại thông dụng hiện nay
Tùy theo nhu cầu của từng gia đình, nhà máy, xí nghiệp mà bể tự hoại, bể phốt được chia thành những loại khác nhau. Về cấu tạo, bể tự hoại được chia thành 3 loại cơ bản là bể tự hoại 2 ngăn, bể tự hoại 3 ngăn và bể tự hoại 3 ngăn cải tiến. Cách phân loại phổ biến nhất là dựa vào yêu cầu chất lượng nước thải bể tự hoại.

Theo đó bể tự hoại được chia thành bể có ngăn lọc và bể không có ngăn lọc.
Bể tự hoại không có ngăn lọc: Đây là loại bể được sử dụng phổ biến nhất. Nó có thể 1,2 hay 3 ngăn tùy ý. Bể xử lý nước thải sinh hoạt nhờ 2 quá trình lắng tĩnh và lên men. Ưu điểm của loại bể này là hiệu quả giữ cặn cao, kết cấu đơn giản, dễ quản lý, giá rẻ. Tuy nhiên nhược điểm là khi bể rò rỉ có thể ảnh hưởng đến tính bền vững của ngôi nhà, mặt khác bể không có ngăn lọc nên nước thải không hoàn toàn sạch, nước ra khỏi bể vẫn mang theo cặn của lớp váng cặn rơi xuống. (Tham khảo bể tự hoại cải tiến chế tạo sẵn 3 ngăn)

Bể tự hoại có ngăn lọc: Bể được cấu tạo thêm một ngăn lọc ở cuối. Bể cũng xử lý nước thải qua 2 quá trình là lắng tĩnh và lên men. Nhưng nhờ có ngăn lọc nên nước thải được xử lý tốt hơn, vi trùng còn ít hơn, đáp ứng yêu cầu nước thải đầu ra. Với bể có lọc có thể sử dụng bể 3,4 hoặc 5 ngăn đều được.

Nhược điểm của loại bể này chi phí xây dựng cao, do phải có hệ giá thể vi sinh (giá thể vi sinh tổ ong), độ sâu chôn ống thoát nước sau bể lớn do nước thoát ra ở đáy bể.
Bể tự hoại cải tiến chế tạo sẵn bằng Composite: Thông qua Tiểu dự án Vệ sinh phân tán (DESA), các nhà khoa học của Trung tâm Kỹ thuật Môi trường Đô thị và Khu công nghiệp (CEETIA) thuộc Trường Đại học Xây dựng Hà Nội không chỉ nghiên cứu một cách hệ thống về các mô hình quản lý nước thải phân tán, mà còn cung cấp các giải pháp công nghệ xử lý hữu hiệu, trong đó có bể tự hoại cải tiến BAST, BASTAF và hệ thống xử lý nước thải phân tán theo công nghệ BASTAF.

Để nghiên cứu nâng cao hiệu quả xử lý của bể BAST, nhóm nghiên cứu đã thêm một ngăn lọc kỵ khí vào vị trí ngăn cuối cùng (bể BASTAF - hình 4b). Kết quả nghiên cứu cho thấy ngăn lọc với vật liệu là than xỉ hay các quả cầu chế tạo từ nhựa tái chế VABCO (kết quả một công trình nghiên cứu khác của GS Nguyễn Việt Anh và các đồng nghiệp) cho phép nâng cao hiệu suất xử lý của bể trung bình ~ 10% theo COD và SS. Ngăn lọc kỵ khí còn đóng vai trò quan trọng trong việc tránh rửa trôi các chất rắn ra khỏi bể.

Nhóm nghiên cứu tại Trường Đại học Xây dựng đã lắp đặt nhiều bể BAST và BASTAF thử nghiệm (pilot) ngoài hiện trường. Các kết quả đo đạc hiện trường cho thấy kết quả xử lý COD và SS của bể BASTAF P-01, lắp đặt tại một hộ gia đình 5 người ở quận Hai Bà Trưng, Hà Nội. Trong khoảng thời gian nghiên cứu từ 2.2003 đến 11.2005, mặc dù nước thải thô từ toilet có nồng độ đậm đặc và dao động (COD 1.500- 4.800 mg/l), nhưng hiệu quả xử lý các chất hữu cơ và chất rắn lơ lửng rất cao và ổn định đã được ghi nhận: 77% (45,9 - 95,8%) đối với COD và trung bình 86,2% (69,1- 97,3%) đối với SS..

Trên đây là một số thông tin chi tiết về các dạng bể tự hoại mà bạn có thể tham sảo, sử dụng linh hoạt, phù hợp cho công trình, dự án.
Ngoài ra, để xử lý nước thải một ách hiệu quả, tuân thủ các quy định bảo vệ môi trường xử lý nước thải đạt tiêu chuẩn cho phép, bể tự hoai có thể kết hợp với các modun khác để mang lại hiệu quả xử lý cao hơn như: Bể tự hoại + bãi lọc ngầm, bể tự hoại + tháp lọc sinh học, bể tự hoại + hồ sinh học...

Nếu có ai đó nói rằng vấn đề của bạn là khó........... Hãy gọi cho chúng tôi 0942226986 "Tư vấn môi trường, giấy phép môi trường, xlmt... chương trình quản lý môi trường tại cơ sở." HÃY LIÊN HỆ NGAY ThS Nguyễn Hữu Tuyên ĐT: 0942226986/ZALO.

=====================================================================
Công ty CP Kỹ Thuật Môi Trường và Xây Dựng VINACEE Việt Nam
Địa chỉ: Đội 1 xã Tả Thanh Oai, huyện Thanh Trì, TP Hà Nội
VPGD: Tòa nhà Licogi số 25A, Tân Mai, Hoàng Mai, Hà Nội
Showroom 1: 177, Đại La, Hai Bà Trưng, TP Hà Nội
Showroom 2: TT Thương Mại, Tòa LICOGI19, 25 Tân Mai, HM, TP Hà Nội
NPP - Quốc Chính Số 36, Ngõ 264 Phố Định Công Hạ, P Định Công, Q Hoàng Mai, TP HN (0984849454)
Hotline: Mr Tuyên 0942226986 (zalo), Mr Thanh 0837145888 (zalo)
Website: betachmo.vn/ E-mail: vinaceeco@gmail.com
Viết bình luận
Bạn đã gửi bình luận thành công. Xin cảm ơn!