Trọn bộ mẫu thiết kế bể tách mỡ, modun xử lý nước tham khảo cho Trường học và căng tin bênh viện
Bể tách mỡ, modun xử lý nước thải với những công năng tuyệt vời đang trở thành sản phẩm thân thuộc với cuộc sống với chúng ta hơn bao giờ hết. Tại đây VINACEE Việt Nam xin được tổng hợp một số mẫu thiết kế bể tách mỡ và các modun xử lý nước thải nhiễm dầu mỡ được quan tâm nhiều nhất cho các dự án.

Bể tách mỡ là gì? có công năng như thế nào?
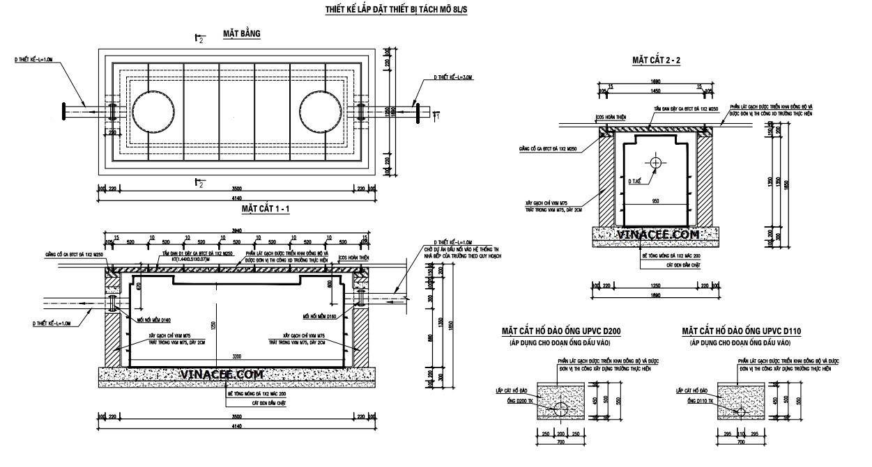
Bể tách mỡ là thiết bị dùng để tách dầu mỡ thừa sau quá trình sơ chế, nấu ăn, quá trình vệ sinh nhà bếp, nhà xưởng ra khỏi nước thải. Bể tách mỡ thường được bố trí dưới chậu rửa trong bếp ăn của gia đình, quán ăn, căng tin, nhà hàng, khách sạn hoặc sẽ được đặt chìm dưới lòng đất. Nhằm ngăn chặn dầu mỡ thừa dính bám gây tắc đường ống, bảo vệ công trình và bảo vệ hệ thống thoát nước công cộng.
Nguyên lý hoạt động của bể tách mỡ thông minh? (Không sử dụng điện năng, hóa chất) - XEM TÀI LIỆU HƯỚNG DẪN SỬ DỤNG BỂ TÁCH MỠ

Nguyên lý hoạt động của bể tách mỡ thông minh dựa vào sự khác nhau về trọng lượng riêng của nước và dầu mỡ, nhờ đó, theo kỹ thuật thiết kế, dầu mỡ được dòng chảy hướng lên tuyển nổi lên trên bề mặt, nước sạch thẩm thấu xuống phía dưới và đi ra ngoài.
Hướng dẫn sử dụng bể tách mỡ Nhà hàng và Công nghiệp qua file (File catalogue bể tách mỡ)
Cụ thể: Nước thải có chứa một lượng dầu, mỡ tương đối lớn sẽ được đưa vào ngăn chứa thứ nhất thông qua rọ rác được thiết kế bên trong cho phép giữ lại các chất bẩn như các loại thực phẩm, đồ ăn thừa, xương hay các loại tạp chất khác...có trong nước thải. Chức năng này giúp cho bể tách mỡ làm việc ổn định mà không bị nghẹt rác. Sau đó nước thải đi sang ngăn thứ hai, ở đây thời gian lưu dài đủ để mỡ, dầu được tuyển nổi lên mặt nước. Còn phần nước trong sau khi mỡ và dầu đã tách ra lại tiếp tục đi xuống đáy bể và chảy ra ngoài.

Để lựa chọn được sản phẩm bể tách mỡ tốt, phù hợp, bạn cần tham khảo sự tư vấn của các đơn vị có chuyên môn và có kinh nghiệm (Bạn có thể liên hệ ThS Nguyễn Hữu Tuyên - Tư vấn hoàn toàn miễn phí), để được tư vấn sản phẩm phù hợp, lựa chọn thiết kế hiệu quả.

Bên cạnh đó Khách hàng cần thật sự chút ý đến các đơn vị cung cấp, nhà cung cấp uy tín để đảm bảo quyền lợi sử dụng và các lợi ích lâu dài như: Bảo hành, đổi trả hàng hóa, bảo dưỡng, bảo trì...và các dịch vụ hỗ trợ khác.
Từ kinh nghiệm cũng như tâm huyết trong lĩnh vực tư vấn môi trường, thoát nước và xử lý nước thải, VINACEE Việt Nam xin chia sẻ top các bản vẽ thiết kế BTM với mong muốn bạn luôn có những sự lựa chọn tốt nhất, phù hợp nhất cho cơ sở của mình. (XEM THÊM CÁC DỰ ÁN TÁCH MỠ VÀ XỬ LÝ NƯỚC THẢI NHIỄM DẦU MỠ DO VINACEE THỰC HIỆN).
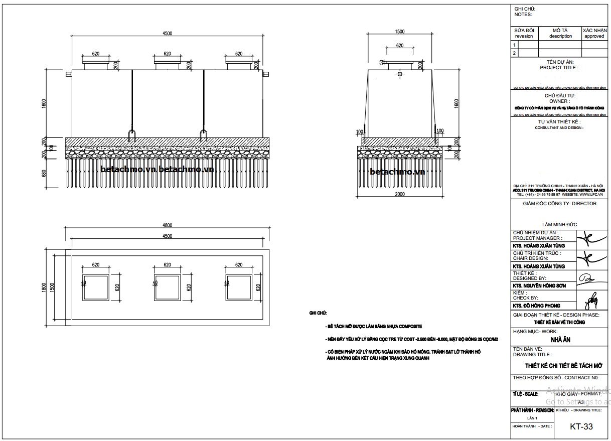
Bể tách mỡ Công nghiệp sản xuất bằng Compostie (XEM CHI TIẾT BỂ TÁCH MỠ COMPOSITE)
Đây là một dòng bể có kích thước lớn từ 3 - 20 m3, thay thế cho các loại bể xâu dựng bằng bê tông cốt thép, cồng kềnh, tốn chi phí và hiệu quả thấp từ những thiết kế truyền thống cũ. Việc sử dụng bể composite với thiết kế tối ưu, bổ sung hộp lọc mỡ tích, linh hoạt sử dụng, có hiệu quả tới 95,8% tách dầu mỡ trong nước thải. (Sản phẩm được cung cấp lắp đặt cho hơn 50 dự án tại Việt Nam)
Với kinh nghiệm >10 năm sản xuất Composite, sản phẩm VINACEE luôn mang đến sự hài lòng của khách hàng trong và ngoài nước. Quy trình sản xuất của Công ty được Văn phòng chứng nhận Quốc gia chứng nhận đạt tiêu chuẩn ISO 9001:2015 vè quản lý chất lượng sản phẩm. XEM THÊM BỂ TÁCH MỠ CHO DỰ ÁN.





Viết bình luận
Bạn đã gửi bình luận thành công. Xin cảm ơn!