Nhận định mô hình xử lý nước thải y tế xã phường sẽ được áp dụng nhiều trong tương lai
Nước thải y tế và các loại nước thải trong cơ sở hoạt động dịch vụ y tế
Nguồn phát sinh nước thải y tế đến từ nhiều hoạt động khác nhau, có thể phân loại thành 2 nguồn chính: xem thêm phòng khám nhỏ
- Nước thải sinh hoạt: từ các hoạt động vệ sinh, tắm rửa, giặt giũ, hoạt động vệ sinh phòng ốc…, nước thải từ nhà vệ sinh, bể phốt, nhà vệ sinh của cán bộ nhân viên.
- Nước thải y tế: từ các hoạt động khám chữa bệnh, tiểu phẫu, phẫu thuật, xét nghiệm, dịch tiết, máu, mủ, các bộ phận loại bỏ của cơ thể, vệ sinh dụng cụ y khoa.

Với nhiều cơ sở y tế nhỏ như phòng khám, trạm y tế xã, phường các hoạt động đại phẫu diễn ra khá ít, nước thải chủ yếu phát sinh từ nguồn nước thải sinh hoạt và vệ sinh dụng cụ y tế.

Vậy thiết bị công nghệ nào sẽ phù hợp với các cơ sở này, vừa đảm bảo tiết kiệm chi phí đầu tư xây dựng, vừa đảm bảo dễ dàng vận hành, sử dụng, bảo dưỡng. Hãy cùng ThS Nguyễn Hữu Tuyên nhận định sản phẩm công nghệ này nhé.
Công nghệ AO kết hợp MBR để xử lý nước thải y tế bền vững với chi phí thấp
Nước thải y tế tại các cơ sở nhỏ nhìn chung vẫn chứa các chất đọc hại và tính chất chung của nước thải y tế. Tuy nhiên, nước thải phòng khám lại có các đặc trưng sau đây.

+ Lượng nước thải ít, tùy thuộc vào quy mô và số lượng khám bệnh của phòng khám mà nước thải sẽ có khoảng từ 500 lít đến 10 m3 (mét khối/ ngày)
+ Thời gian xả thải không đều tùy thuộc vào nhu cầu khám chữa bệnh
+ Nước thải không chứa nhiều chất độc hại, phần lớn là các vi sinh vật gây bệnh.
+ Phần lớn phòng khám có diện tích nhỏ nên cần hệ thống xử lý nhỏ gọn hoặc âm đất
+ Phòng khám không có nhận viên quản lý và vận hành hệ thống xử lý nước thải 24/7, vì vây, Phòng khám cần có một hệ thông xử lý nước thải có thể chạy auto.

Qua các đặc điểm trên, ta có thể thấy công nghệ AO với kích thước nhỏ gọn kết hợp với màng MBR giúp xử lý triệt để các vi sinh vật gây hại trong nước.
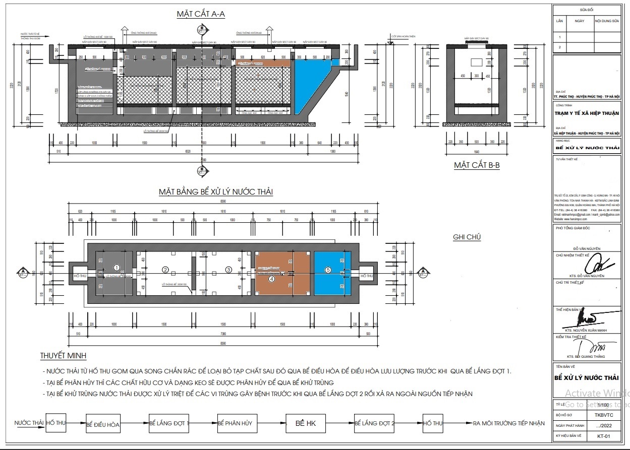
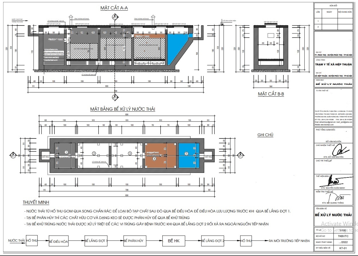
Sơ đồ công nghệ xử lý nước thải y tế phòng khám AO kết hợp MBR
Theo sơ đồ trên, ta có thể thấy công nghệ AO kết hợp MBR rất nhỏ gọn, mà vẫn đủ các bước xử lý để nước thải đạt chuẩn.

Từ sơ đồ và kinh nghiệm thực tiễn, VINACEE Việt Nam đã đưa ra một số cấu trúc module xử lý nước thải phòng khám nhỏ gọn, nguyên khối có thể đặt 1 góc trong phòng khám, và dễ dàng di chuyển khi cần thiết.

Tuy nhiên, tùy theo yêu cầu dự án, mức đầu tư kinh phí cũng có thể xây dựng các hệ thống tương tự bên dưới, thuận thiện cho quá trình vận hành.

Xem thêm HƯỚNG DẪN ÁP DỤNG CÔNG NGHỆ XỬ LÝ NƯỚC THẢI Y TẾ DO BỘ Y TẾ BAN HÀNH

LIÊN HỆ: CÔNG TY CP KỸ THUẬT MÔI TRƯỜNG VÀ XÂY DỰNG VINACEE VIỆT NAM
VPGD: Tầng 2, Tòa nhà LICOGI số 25A, Tân Mai, Hoàng Mai, Hà Nội
Showroom: 177, Phố Đại La, P Đồng Tâm, Q Hai Bà Trưng, TP Hà Nội
Điện thoại hotline: 0942226986 /email: vinaceeco@gmail.com
Viết bình luận
Bạn đã gửi bình luận thành công. Xin cảm ơn!