Hé lộ một số mẫu thiết kế bể tách mỡ Composite (FRP) được sử dụng nhiều cho dự án
Không còn lo tắc nghẽn, bảo vệ đường ống, bảo vệ công trình, bảo vệ thiết bị, bể tách mỡ thông minh giúp bạn giải quyết những vấn đề đó. Bài viết giới thiệu một số mẫu thiết kế bể tách mỡ Composite được sử dụng hiệu quả cho nhiều dự án đặc biệt là các bếp ăn công nghiệp, Căng tin trường học, bệnh viện, cơ sở công lập.

Nhiều người trong chúng ta thường nghĩ: Dầu mỡ thừa sẽ theo dòng nước chảy ra ngoài bể chứa; Trên thực tế là dầu mỡ phần lớn sẽ bám lại trên thành ống, lâu dần dẫn đến hiện tượng tắc ống thoát, gây mùi khó chịu. Thậm chí rác thải dầu mỡ bị đọng lại lâu ngày không được xử lý có thể dẫn đến tình trạng hỏng, vỡ đường ống thoát nước.

Bể tách mỡ rất hiệu quả đặc biệt các bể tách mỡ tổng của công trình, dự án giúp, tránh được những hậu quả xấu như tắc nghẽn cho hệ thống thoát nước, nhất là những hệ thống thoát âm, rất khó bảo trì bảo dưỡng. Ngoài ra, thiết bị này còn ngăn mùi hôi từ ống cống bốc ngược lại.
Bể tách mỡ Composite với nhiều lợi ích vượt trội khi áp dụng cho dự án quy mô lớn
Bể tách mỡ Composite hiết bị tách mỡ thông minh là 1 thiết bị đóng vai trò quan trọng với mục đích xử lý nguồn nước thải có chứa dầu mỡ trong quá trình nấu nướng và tránh rửa bồn cầu.

Lắp đặt thiết bị lọc mỡ thông minh là cách tối ưu nhất để xử lý triệt để nguyên nhân tắt đường ống và phát triển mùi hôi thối. Nước thải sau quá trình vệ sinh đi vào thiết bị tách mỡ..
Ưu điểm vượt trội của bể tách mỡ Composite
+ Sử dụng tốt, phù hợp, hiệu quả kinh tế đối với các nhà ăn công nghiệp, căn tin trường học, bệnh viện.
+ Bể nhựa composite luôn có tuổi thọ trên 30 - 50 năm.
+ Trọng lượng nhỏ gọn nhẹ (sản xuất sẵn tại xưởng) nên thời gian thi công lắp đặt nhanh, cơ động, tùy chỉnh theo thiết kế và mặt bằng công trình.
+ Dễ dàng vệ sinh, tháo lắp hay lắp đặt.
+ Kháng hóa chất và nhiệt độ cực tốt, so với inox (inox 201) dễ bị gỉ sét hay loại nhựa HDPE dễ bị hao mòn do thời tiết.

+ Hoàn toàn phù hợp để sử dụng ở những vùng thường nhiễm mặn hoặc vùng tiếp giáp biển, ngoài trời hay chôn dưới đất mà không hề gây oxy hóa.
+ Giá thành hợp lý hơn chất liệu inox cùng dung tích > 2000 lít/
Thống kê những tính năng ưu việt của bể tách mỡ Composite
1. Bể tách mỡ bằng vật liệu composite FRP có thiết kế khá đơn giản.
Việc làm sạch dầu mỡ cũng không mất quá nhiều thời gian. Nhờ đó, cho kết quả nước lọc loại bỏ gần như 100% dầu mỡ trước khi thải ra ngoài môi trường.
2. Thùng lọc mỡ composite có thể đặt ở nhiều vị trí khác nhau
Cũng nhờ vào cấu tạo bể tách mỡ làm bằng vật liệu composite khá nhỏ gọn, nên có thể lắp đặt ở một vị trí thuận tiện cho quá trình xử lý mà không chiếm diện tích.

Ngoài ra, thiết kế bồn lọc dầu mỡ này cũng khá dễ dàng, giúp tạo sự tiện nghi cho tổng quan công trình.
3. Bẫy lọc mỡ composite có độ bền rất cao (thường từ 30 - 50 năm)
Một thành phẩm chuẩn bị chốt xong đơn hàng, Nhờ vào chất liệu nhựa composite bền bỉ, thùng lọc dầu mỡ mini có khả năng chịu được môi trường thời tiết khắc nghiệt, chống lại sự oxi hóa, các tác nhân từ môi trường, sự ăn mòn axit… hay những nơi mà vật liệu sắt thép không thể lắp đặt.

Sản phẩm luôn được VINACEE Việt Nam bảo hành từ 2 - 5 năm cho mỗi dự án.
4. Thuận lợi trong quá trình vận chuyển và lắp đặt
Bể composite có khối lượng khá nhẹ, thiết kế gọn gàng tất thuận tiện trong việc vận chuyển hoặc di rời. Bên cạnh đó, việc lắp đặt, thi công cũng tương đối dễ dàng, không mất quá nhiều thời gian, công sức cũng như chi phí lắp đặt.
5. Máy tách mỡ composite hoạt động với công suất lớn.
Cho khả năng hoạt động với năng suất cao trong thời gian liên tục mà không gây ra tiếng ồn khi hoạt động, bể bằng vật liệu composite có thời gian sử dụng lên tới 50 năm. Ngoài ra, chúng còn rất ít xảy ra tình trạng hỏng hóc, giúp người dùng tiết kiệm tối đa chi phí sửa chữa, bảo dưỡng.
6. Giá thành hợp lý, phù hợp với mọi khách hàng khi hiểu rõ về sản phẩm.
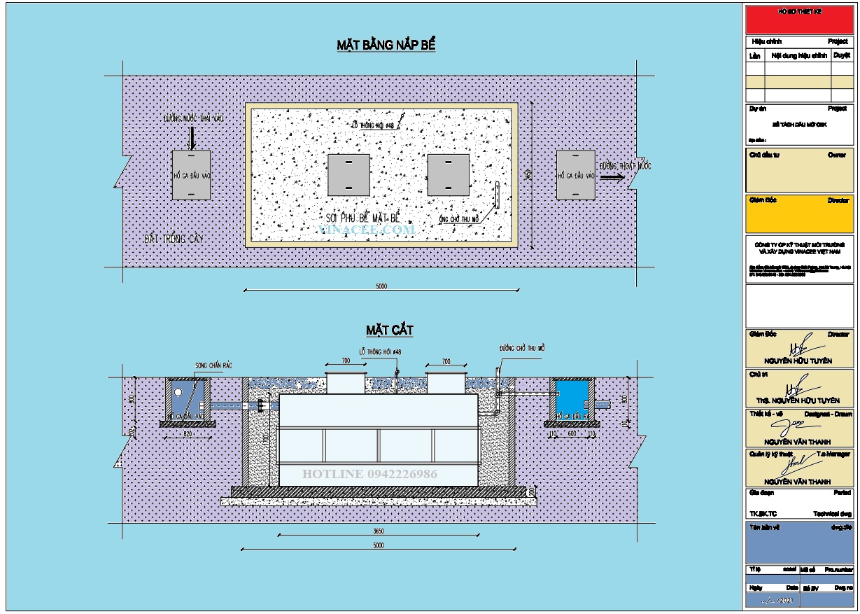
Thiết kế miễn phí các bể tách mỡ và hệ thống tách dầu mỡ
Tùy thuộc vào điều kiện thức tế hiện trường, nhu cầu của khách hàng VINACEE đưa ra phương án, công nghệ cũng như kích thước bể tách mỡ phù hợp cho bạn. Thời gian lập phương án, thiêt kế từ 1 – 2 ngày với một số trường hợp đặc thù VINACEE có thể đề xuất trực tiếp hay lên bản vẽ chi tiết cho bạn.

Với phương châm, lấy lợi ích của khách hàng làm mục tiêu phục vụ, VINCEE tự tin sẽ đem lại cho khách hàng sản phẩm tối ưu nhất, công nghệ mới nhất và sự tận tâm nhất. VINACEE hướng tới mục tiêu “ĐEM LẠI GIÁ TRỊ TỐT NHẤT VÀ HIỆU QUẢ NHẤT CHO KHÁCH HÀNG”.
Tư vấn công nghệ và thiết kế cho các dự án. ThS Nguyễn Hữu Tuyên (ĐT/Zalo: 0942226986)
Viết bình luận
Bạn đã gửi bình luận thành công. Xin cảm ơn!